下载APP
收藏本站
帮助中心
天天打卡
切换到宽版
账号
自动登录
找回密码
密码
登录
注册
微信登录,快人一步
只需一步,快速开始
快捷导航
感染网
门户
Portal
论坛
BBS
导读
Guide
圈子
Group
问答中心
活动商城
@资料库
@VIP专区
#全民话题
AI文库
AI聊天
活动中心
积分商城
积分捐助
课件库
法规库
视频库
工具箱
新媒体联盟
专家笔记区
专题见稿区
专题专栏区
活动中心
积分商城
感控书城
技能提升
直播回放
2025年会
法规文库
专家笔记
音视频库
指标解读
感术行动
更多专栏
绑定微信
官方微信
医考圈
绑定手机
官方微博
实名认证
自编书库
论坛公告
发展历程
关于我们
搜索
搜索
热搜:
感术行动
规率行动
送检率
规范解读
口腔科
邻苯二甲醛
隔离标识
水处理
手卫生
手术室
多重耐药菌
计划
法规
本版
用户
慈善为民论坛
»
论坛
›
重点部门
›
ICU
›
求助:ICU、CCU建筑布局与设计(合并帖) ...
1
2
3
4
/ 4 页
下一页
返回列表
发新帖
楼主:
zhenni
[求助]
求助:ICU、CCU建筑布局与设计(合并帖)
火
[复制链接]
红新月
红新月
当前离线
积分
425
发表于 2011-5-11 22:33
|
显示全部楼层
我好像传了附件的,怎么看不到?
回复
顶
踩
使用道具
举报
红新月
红新月
当前离线
积分
425
发表于 2011-5-11 22:50
|
显示全部楼层
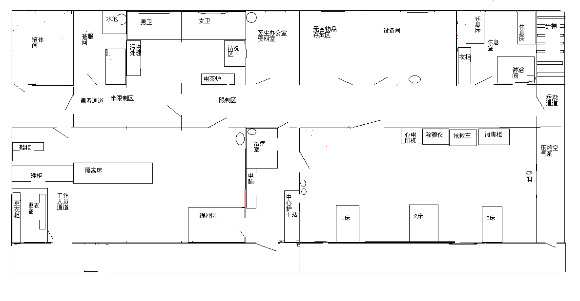
icu布局图
已经做好了,请大家交流指导
回复
顶
踩
使用道具
举报
7336138
7336138
当前离线
积分
227
发表于 2011-5-11 23:37
|
显示全部楼层
上下两个更衣更鞋是?男女更吗?
回复
顶
踩
使用道具
举报
黑旋风
黑旋风
当前离线
积分
11082
发表于 2011-5-12 06:34
|
显示全部楼层
回复
6#
瞧瞧
非常赞同你的观点!关键是我们如何落实标准预防。
回复
顶
踩
使用道具
举报
红新月
红新月
当前离线
积分
425
发表于 2011-5-12 06:57
|
显示全部楼层
不是两个更衣室,因为我科室的特殊情况,工作人员夜间有2小时的休息时间,下面的更衣更鞋是在工作时进入休息室不能穿工作衣服,所以设了一个区域,不知道合理吗?
回复
顶
踩
使用道具
举报
红新月
红新月
当前离线
积分
425
发表于 2011-5-12 22:26
|
显示全部楼层
今天是护士节,也是汶川大地震三周年纪念日,在这个特殊的日子,但愿人长久,祝福大家永远欢笑,永远快乐。
回复
顶
踩
使用道具
举报
红新月
红新月
当前离线
积分
425
发表于 2011-5-13 22:44
|
显示全部楼层
新建的要好一点,我的是在原来的病房楼基础上改造的,工程又不想太大,所以才纠结。
回复
顶
踩
使用道具
举报
红新月
红新月
当前离线
积分
425
发表于 2011-5-13 22:57
|
显示全部楼层
期待有朋友提出建议,但是好像?明天去我们省质量控制中心参观一下,开拓一下思路。
回复
顶
踩
使用道具
举报
男丁格尔
男丁格尔
当前离线
积分
8335
发表于 2011-5-13 23:46
|
显示全部楼层
本帖最后由 majiarui 于 2011-5-13 23:49 编辑
回复
16#
红新月
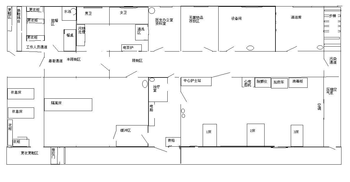
您这个是准备施工的图纸?是洁净环境么?首先说,单通道问题不大,做好人员和物品管理就可以。清洁库是干什么用的??既然叫做中心护士站,为什么不设置在三张床的中间呢?或者每个床作为单独的护理单元,不好么?隔离病房不一定必须强调缓冲。休息区是在ICU的外面?还要更鞋更衣啊?有点麻烦。。。电茶炉似乎和清洗区、卫生间、污物处理在一个区域?这恐怕不是很合适。另外您的清洗区洗什么?洁净ICU还需要空调??纯属个人观点,不妥之处,欢迎各位批评指正。
回复
顶
踩
使用道具
举报
天上流云
天上流云
当前离线
积分
1830
发表于 2011-5-14 21:19
|
显示全部楼层
ICU的布局
我院起用新的ICU,我想请问各位老师,我们ICU一个大房间可以摆放18张床,是否要进行隔断,如何隔请指教。谢谢!!
回复
顶
踩
使用道具
举报
男丁格尔
男丁格尔
当前离线
积分
8335
发表于 2011-5-14 21:36
|
显示全部楼层
您的ICU主要收治范围?至少设置一间隔离ICU,另外,18床作为一个大单元,不是很方便观察与护理,除非您是专科医院?具体情况您说说,有草图么?
回复
顶
踩
使用道具
举报
7336138
7336138
当前离线
积分
227
发表于 2011-5-15 20:23
|
显示全部楼层
1、ICU开放式病床每床的占地面积为15~18M2,每个ICU最少配备一个单间病房,面积为18~25M2;
2、每个ICU管理单元以8到12张床位为宜;
3、在人力资源充足的条件下,多设计单间或分隔式病房。
回复
顶
踩
使用道具
举报
红新月
红新月
当前离线
积分
425
发表于 2011-5-15 21:34
|
显示全部楼层
先回答问题:1.是局部改造图纸,随后贴出原来的图纸好对比,2.不是洁净环境,3.清洁库用来存放床上用品以及注射用液体,4,中心护士站不设在中间是因为转运病人不方便,5.休息室在里面通过阳台的走廊与监护区相同6,电茶炉的确不是很合适,但是整栋楼的位置是统一的,好像不太方便改动,7,清洗区主要用来刷洗拖鞋,我原来的休息室在清洁库,专家说不合适,在清洁区内,随后我把现在的布局贴出来大家看看。共同探讨啊。
回复
顶
踩
使用道具
举报
红新月
红新月
当前离线
积分
425
发表于 2011-5-15 21:57
|
显示全部楼层
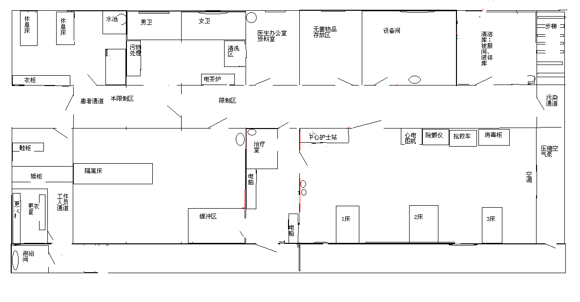
上传目前的布局图,大家 讨论,我也去参观了一下,改变一下自己的思路。
回复
顶
踩
使用道具
举报
红新月
红新月
当前离线
积分
425
发表于 2011-5-15 22:09
|
显示全部楼层
这是最新的改造思路,上传大家讨论。
回复
顶
踩
使用道具
举报
红新月
红新月
当前离线
积分
425
发表于 2011-5-17 20:59
|
显示全部楼层
新的布局图已经上传,请大家发表看法,个人认为较为合理,改造比较容易实现。
回复
顶
踩
使用道具
举报
红新月
红新月
当前离线
积分
425
发表于 2011-6-1 21:27
|
显示全部楼层
布局改造不准备做了,有人说“怎么改都不合格,不如不改”。我默许。
回复
顶
踩
使用道具
举报
袅袅炊烟
袅袅炊烟
当前离线
积分
605
发表于 2011-9-1 16:13
|
显示全部楼层
院感人来设计建筑图纸,,是否有点````````太勉强了````
如果省卫生厅有专门负责帮助各医院院感防控重点科室规划布局流程的专家就好了,上级专家来检查也不会说不合格了
不过这样的专家既要懂建筑设计,还得懂相应的医学知识,有这样的人才吗?
回复
顶
踩
使用道具
举报
小丫88
小丫88
当前离线
积分
1549
发表于 2013-11-12 07:36
|
显示全部楼层
单间病房太少,
回复
顶
踩
使用道具
举报
920701849
920701849
当前离线
积分
263
发表于 2014-4-25 21:36
|
显示全部楼层
配备一个单间病房,使用面积不少于18平方米,用于收治隔离病人;有条件还可设一间负压房间。
回复
顶
踩
使用道具
举报
下一页 »
1
2
3
4
/ 4 页
下一页
返回列表
发新帖
高级模式
B
Color
Image
Link
Quote
Code
Smilies
您需要登录后才可以回帖
登录
|
注册
|
本版积分规则
发表回复
回帖并转播
回帖后跳转到最后一页
浏览过的版块
新型冠状病毒
文献与书籍介绍
医疗废物/污水
手术室与介入室
HIV、HBV和HCV等血源性疾病
规章制度和SOP
督导方案与迎检经验
多耐监测与防治
内镜室
感染病科的学科建设与进展
关闭
站长推荐
/1
输液管的连接头,算损伤性还是感染性废物?
它确实存在刺伤人体的风险,如何处理,成了感控部门非常纠结的管理点。
查看 »
Copyright © 2007-2025
慈善为民论坛
(https://www.cswmzf.com/) 版权所有 All Rights Reserved.
E-mail:sific2007@163.com QQ:2420400092(小小牧童)
Powered by
Discuz!
X3.5 技术支持:
上海莫畏信息科技有限公司
|
沪ICP备16047626号-1
快速回复
返回顶部
返回列表